Gods Country Estate Home

GODS COUNTRY ESTATE , JOHANNESBURG | JANUARY, 2025

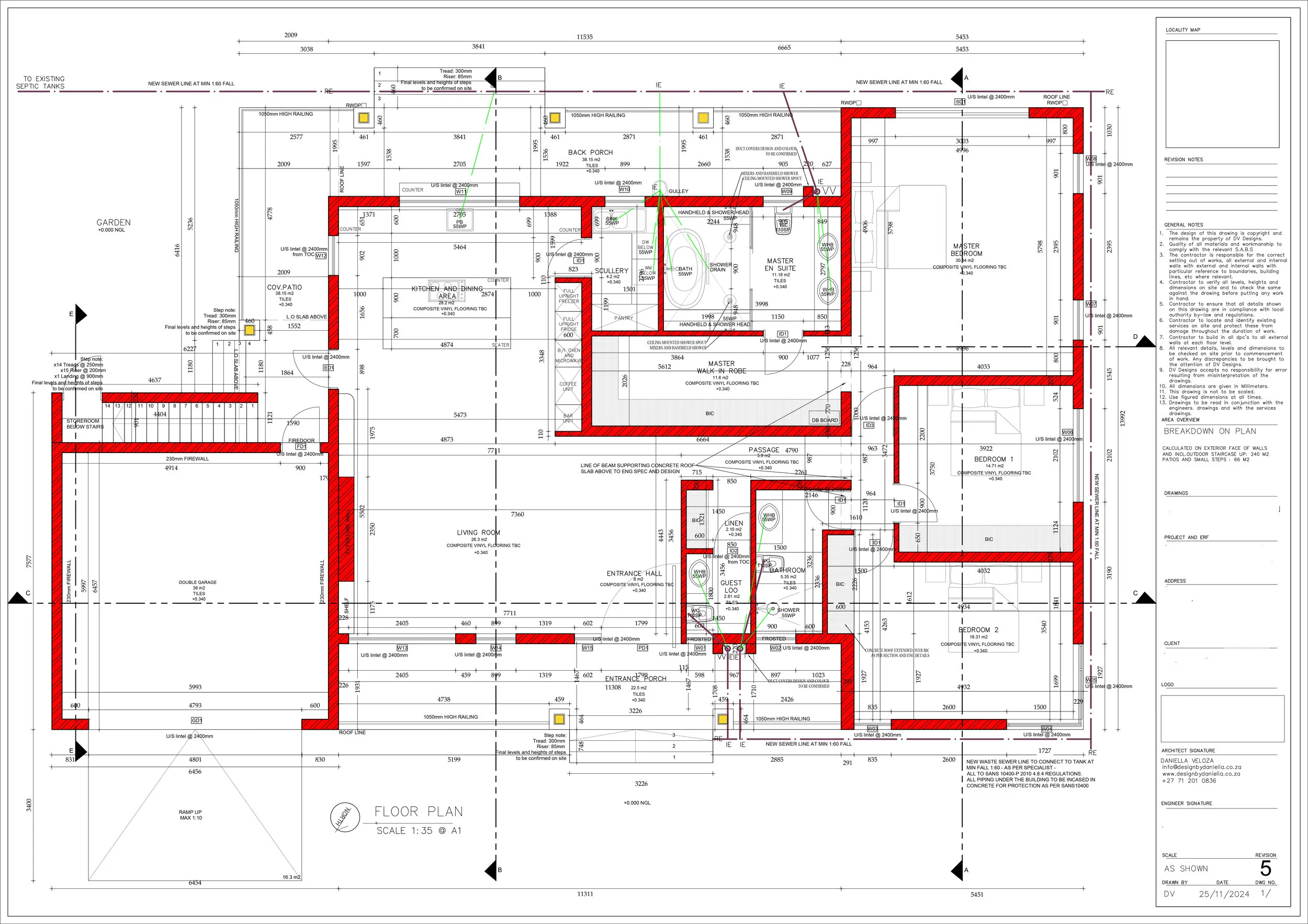
The Floorplan


Project Details

We were thrilled to design this beautiful new family home in Johannesburg, carefully integrating the modern farm-style aesthetic of the existing homes on the plot. The design focuses on blending contemporary elegance with rustic charm, creating a harmonious connection between the old and new. The home features expansive, light-filled open spaces and dramatic volumes, with an emphasis on showcasing the striking truss designs and spans that define its character. The entrance is a lush green oasis, where natural rock and warm wood elements complement the architecture, inviting a sense of tranquility and grounding. The spacious backyard offers a serene and private retreat, perfect for both relaxation and entertainment. Inside, the interiors embrace modern warm tones, with large volumes and an abundance of natural light that flow seamlessly throughout, making this home both a visual masterpiece and a welcoming sanctuary for the family.

Stages of the project we’ve overseen

More About Our Services
Previous
Previous

House 164

Next
Next

Blato On Banks Clusters